氯碱厂的副产氢气作为燃气熔盐炉的燃料
氯碱厂的副产氢气作为燃气熔盐炉的燃料,用于提供固碱蒸发浓缩所需的430℃高温热源
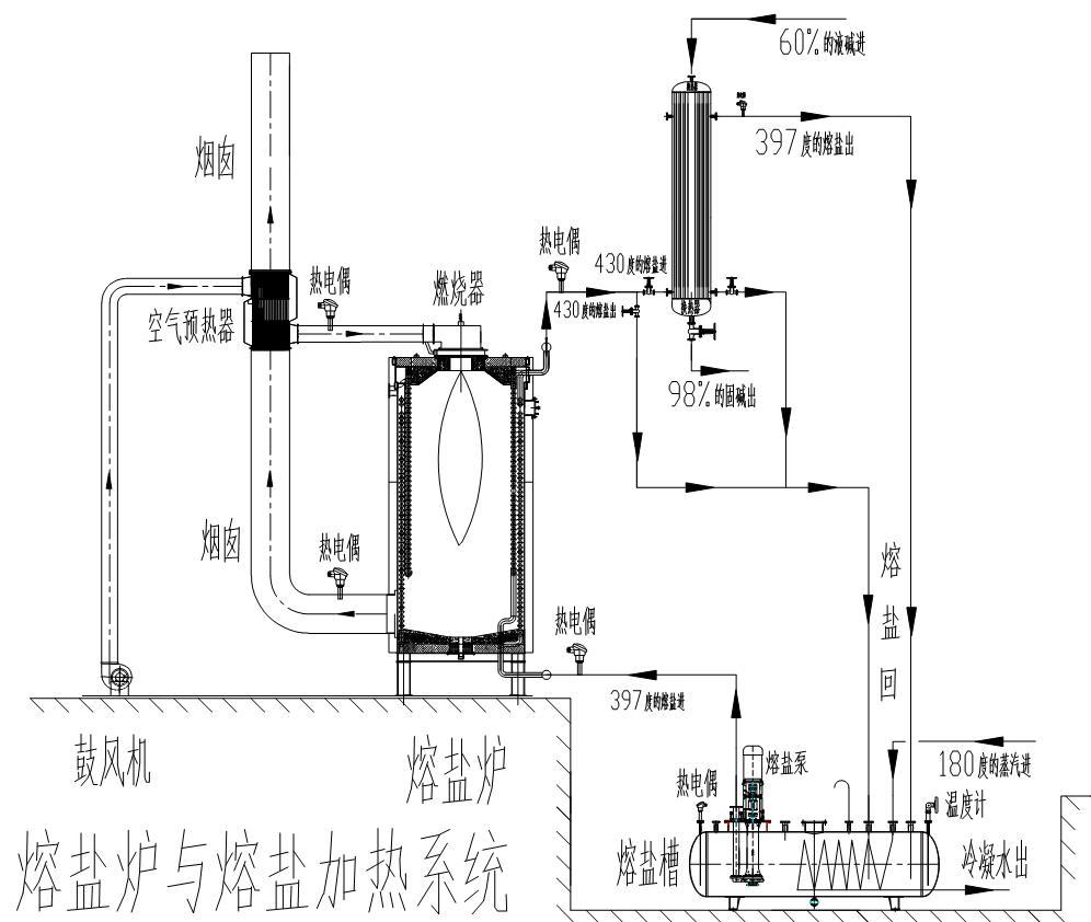
氯碱厂电解食盐水过程中产生的副产氢气,纯度约为98.5%,含有少量氯气、氧气、水蒸气等杂质,经适当净化处理后,完全可用于熔盐炉的燃料,燃烧供热,为固碱(片碱)蒸发、浓缩等工艺提供固碱蒸发浓缩所需的430℃高温热源, 既实现了资源循环利用,又提升了能源效率,是典型的绿色化工实践。
常州市上能锅炉有限公司专注生产制造燃氢气熔盐炉,联系电话:13815029577
一、具体来看:
1.副产氢气来源可靠
氯碱生产每吨烧碱可副产约280 Nm³氢气,纯度超过99%,仅需简单提纯即可作为清洁燃料使用 。
2.氢气燃烧可满足熔盐炉温度需求
燃气熔盐炉的工作温度范围为150℃~580℃,完全可达到固碱浓缩所需的430℃工艺温度 。以氢气为燃料时,燃烧产物为水蒸气,无碳排放,环保性优于燃煤或重油。
3.系统可实现闭环运行
熔盐在浓缩器释放热量后降温至约400℃,回流至熔盐槽,再由熔盐泵送回加热炉重新升温,形成闭路循环系统 。利用氢气燃烧供热,可精准控制熔盐出口温度,保障工艺稳定性。
4.安全与控制需重点管理
氢气易燃易爆,需配备严格的泄漏检测、自动切断和通风系统;同时熔盐在高温下具强氧化性,需防止氢气-熔盐接触引发风险 。建议采用PLC全自动控制,实现±1℃温控精度,确保安全稳定运行 。
二、关键技术与应用现状
1.燃烧温度匹配:熔盐炉通常以硝酸盐混合物(53% KNO3、7%NaNO3和40%NaNO2)为传热介质,工作温度范围在 150–580℃,其中 430℃ 属于常见运行区间,适用于固碱蒸发、浓缩等工序 。
2.氢气燃烧特性:氢气热值高(约142 MJ/kg),燃烧火焰温度可达 2000℃以上,但通过与天然气混合燃烧或调节掺烧比例,可实现对熔盐炉出口温度(如430℃)的精准控制 。
3.实际工程案例:山东昌邑海能化学有限责任公司 于2025年完成熔盐炉燃气系统改造,将副产氢气引入片碱装置熔盐炉,实现 氢气混燃比例达800 Nm³/h,成功稳定运行在所需温度区间,并实现 节能39.3%、年减排CO₂ 3800吨 。
氢气使用方式与优势
a.直接利用富余氢气:无需额外制氢设施,利用现有电解工序副产氢,降低能源浪费与安全排放风险 。
b.掺烧或替代天然气:氢气可作为主燃料,天然气为辅助,实现灵活调峰;当氢气掺入量 ≥500 Nm³/h 时,系统进入经济运行区间 。
环保与经济效益显著:
a.吨产品天然气单耗降低 24.5%
b.片碱装置负荷率提升 12%
c.优级品率提高至 99.9%
注意事项
1.氢气需进行 脱氯、脱氧等预处理,以避免腐蚀设备或影响燃烧稳定性。
2.熔盐炉燃烧器需适配氢气特性(如火焰速度、燃点),采用 分层燃烧或混合燃烧器设计 可提升安全性与。
3.综上,氯碱厂副产氢气用于熔盐炉燃烧、产生430℃热源供固碱蒸发浓缩,在技术上可行、工程上常州市上能锅炉有限公司已有成功实践,且具备显著的节能降碳效益。
三、典型应用场景
副产氢回收利用:氯碱厂、石化企业将生产过程中产生的副产氢用于锅炉供热,变废为宝
联系人:常州市上能锅炉有限公司 芮经理 13815029577
关注本公司产品信息,网站:www.czsngl.com,www.czrfl.cn,www.czrsgl.com
- 上一个:固碱蒸发
- 下一个:燃天然气,燃氢气,掺烧废气导热油炉
